top of page
Fuera de la galería
Bursa (Bursa)
Market
267-457 M2
M2
5000

有关项目的完整信息
Alpis Hunkar Konaklari

该项目的概述,您可以浏览类似的项目
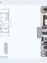
Hunkar candarti项目将由Albish Construction Company创建5,000平方米的图。该项目由5层和30套公寓的3栋建筑物组成。该项目提供1+4.5公寓的选项,面积为267平方米和1+5.5双面的地板,为415平方米和1+6的双工末端,面积为457平方米。

87 Current search results
actualprice
您可以轻松搜索更多项目!
注意:在底部列表中,类似的项目在同一城市和地区显示
Available options
- 29Página 3
bottom of page























































































.jpg)
.png)
.jpg)

