top of page

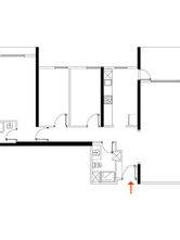
115-120 M2
متر مربع
بورصة
بورصة (Bursa)

معلومات كاملة حول مشروع
Prestij Panora

نبذة عامة عن المشروع , يمكنك تصفح مشاريع مشابهة
يتألف مشروع بريستيج بانورا المُنشأ على يد شركة باك يابي للإنشاءات من 7 أبنية بـ 500 شقة. تم تصميم جميع شقق المشروع على أن يكون عدد غرفها 1+3 بمساحة إجمالية 115-120 متر مربع ومساحة تفصيلية 101-104 متر مربع. هذا ويتضمن المشروع مركز رياضة وساونا وغرف مساج خاصة بالرجال وأخرى بالنساء.
























